井兮精密軸承(上海)專業提供1212-K-TVH-C3+H212軸承,軸承內圈,外圈更多詳細資料您可致電我司,此軸承型號本公司有現貨,獲取FAG 1212-K-TVH-C3+H212配合安裝尺寸,基本尺寸,滾子粒數,價格,外形尺寸,錐度,軸承的圖紙、樣品、價格或者替換產品等!我們是FAG軸承最佳代理商,所售產品均為原裝正品,請您放心購買! 訂購電話:021-36539288 ,021-36539299
我們還提供型號如下型號相關配套軸承產品有: SKFLM241147/110/QVQ051 LM241148/110/QVQ051軸承 LM742749/710/VE174 SKF 544091/2B/544118A/2B軸承 LL566848/810/HAI SKFLM567949/910/HAI LM772748/710/HAI軸承 EE243196/250/HA2
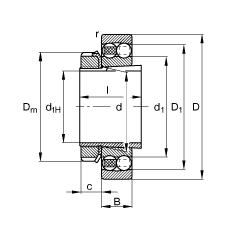
1212-K-TVH-C3+H212軸承參數
自调心球轴承 1212-K-TVH-C3 + H212
|
|
| 根据 DIN 630 和 DIN 5415 标准的主要尺寸, 带锥孔和紧定套 |
|
|
|
组件 |
 |
|
|
|
|
|
|
d1H
|
55
mm
|
|
|
D
|
110
mm
|
|
|
B
|
22
mm
|
|
|
| |
|
Ba min
|
5
mm
|
|
|
c
|
13
mm
|
|
|
D1
|
95,8
mm
|
|
|
Da max
|
101
mm
|
|
|
Dm
|
80
mm
|
|
|
d
|
60
mm
|
|
|
d1
|
78
mm
|
|
|
da max
|
75
mm
|
|
|
db min
|
64
mm
|
|
|
l
|
38
mm
|
|
|
ra max
|
1,5
mm
|
|
|
rs min
|
1,5
mm
|
|
|
| |
|
|
H212
|
|
|
m
|
0,88
kg
|
|
|
m1
|
0,35
kg
|
|
|
Cr
|
30500
N
|
|
|
e
|
0,18
|
|
|
Y1
|
3,47
|
|
|
Y2
|
5,37
|
|
|
C0r
|
11400
N
|
|
|
Y0
|
3,64
|
|
|
nG
|
6700
1/min
|
|
|
nB
|
8500
1/min
|
|
|
Cur
|
710
N
|
|
|
|
軸承用途介紹
縫前設備、潛水泵、粉碎設備配件、皮革加工設備、汽車轉向銷、量革機、縫鞋機、汽車、空氣凈化器、排污泵、電器、燃燒器配件、硫化機、其他制藥設備、冶煉成套設備、反應釜、超聲波焊機、化工管道及配件、計量泵、其它等領域。
軸承經銷商為您推薦
FAG21317E.TVPB、21322E.TVPB軸承、21320E.TVPB、FAG 21319E.TVPB軸承、21318E.TVPB、FAG21316E.TVPB、21314E.TVPB軸承、21315E.TVPB、FAG 21311E.TVPB軸承、21312E.TVPB、FAG21313E.TVPB、21309E.TVPB軸承、21310E.TVPB、FAG 21307E.TVPB軸承、21306E.TVPB、FAG21308E.TVPB、21305E.TVPB軸承、21304E.TVPB、SKF 21319CC軸承、21322CC、SKF21320CC、21318CC軸承、21317CC、SKF 21316CC軸承、21315CC、SKF21314CC